Dom z dachem dwuspadowym z gontu naturalnego J14 prezentuje podejście do projektowania, które łączy zabudowę regionalną z nowoczesną adaptacją tradycyjnych rozwiązań architektonicznych. Naturalne pokrycie dachu gontem i elewacja z gontu tworzą spójną całość z leśnym otoczeniem, podkreślając charakter wiejski projektu. Kolorystyka elewacji została dobrana w inspiracji kolorem pnia drzew, zapewniając harmonijne wpisanie się budynku w krajobraz. Adaptacja istniejącego, starszego domu umożliwiła zachowanie elementów zabudowy regionalnej, przy jednoczesnym nadaniu im nowoczesnego wyglądu oraz funkcjonalności, takich jak poddasze użytkowe czy duże przeszklenia.
Powierzchnia użytkowa wynosi 232,62 m2, przy wymiarach zewnętrznych 20,21 x 10,77 m i dachu dwuspadowym o kącie 44°. Wnętrza przewidują sypialnie ulokowane na poddaszu – rozwiązanie to gwarantuje im znakomite doświetlenie, zgodnie z najnowszymi trendami nowoczesnych domów z poddaszem użytkowym. System rolet i żaluzji zaprojektowano z myślą o zapewnieniu intymności mieszkańcom. Dom wiejski położony w lesie doskonale spełnia standardy projektów domów wysoko energooszczędnych, domów na nietypową działkę oraz obiektów z wentylacją mechaniczną i rekuperacją. W projekcie uwzględniono również garaż dwustanowiskowy, werandę i taras.
Elewacja domu jednorodzinnego w kolorze czarnym i białym

Dom z dachem dwuspadowym prezentuje mocno skontrastowaną elewację: ciemne wykończenie gontem naturalnym zestawiono z jasnym, przeszklonym wnętrzem. Wieczorem uzyskuje się wyrazisty wizualny efekt elewacji – światło wydobywające się z dużych przeszkleń kontrastuje z czarno-białą kolorystyką budynku. Takie rozwiązania często stosowane są w projektach domów nowoczesnych oraz projektach domów z dużą ilością przeszkleń.
Nowoczesny dom z poddaszem użytkowym mieszkalnym

W układzie domu poddasze użytkowe pełni funkcję strefy prywatnej. Sypialnie zostały zaprojektowane tak, aby były znakomicie doświetlone dzięki przeszklonym ścianom, co sprawia, że niemalże 'lewitują’ nad salonem. System przesłaniania okien roletami i żaluzjami zapewnia ochronę prywatności. Takie rozwiązanie zwiększa komfort mieszkańców i stanowi przykład integracji nowoczesnych technologii z tradycyjnym domem wiejskim.
Projekt tradycyjnego domu na wsi polskiej

Wygląd domu akcentuje inspirację zabudową regionalną oraz lokalnymi materiałami: gont naturalny jako pokrycie dachu i elewacji. Adaptacja starego domu pozwoliła zachować regionalne elementy architektoniczne, a zarazem nadać obiektowi nowoczesną funkcję i formę, z wykorzystaniem współczesnych technologii. Naturalna elewacja i nawiązania kolorystyczne do pni drzew podkreślają integrację z leśnym otoczeniem, będąc jednocześnie odpowiedzią na potrzeby nietypowych działek.
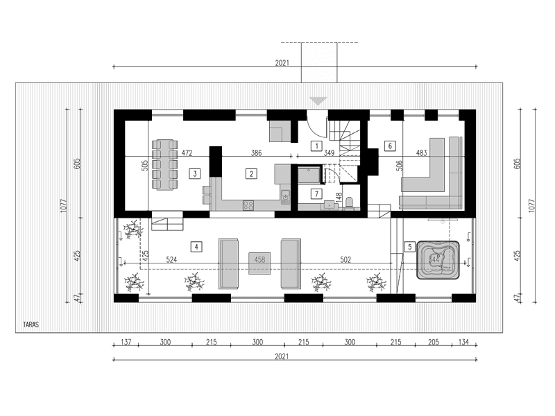
Plan funkcjonalny parteru

Parter obejmuje
- wiatrołap (5,11 m2),
- kuchnię (20,77 m2),
- jadalnię (24,86 m2),
- salony (63,07 m2 + 26,08 m2),
- jacuzzi (14,62 m2),
- łazienkę (6,41 m2).
Suma powierzchni użytkowej parteru wynosi 160,92 m2. Plan podkreśla otwartą, funkcjonalną strefę dzienną, charakterystyczną dla projektów domów jednorodzinnych z dużym metrażem.
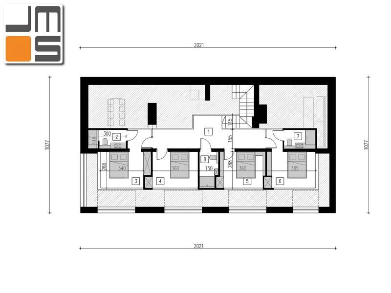
Plan funkcjonalny poddasza

Poddasze użytkowe oferuje
- komunikację (12,48 m2),
- cztery sypialnie (od 4,91 m2 do 12,75 m2),
- trzy łazienki (16,61 m2, 11,92 m2, 4,00 m2).
Suma powierzchni użytkowej poddasza wynosi 77,7 m2. Całkowita powierzchnia użytkowa domu to 232,62 m2. Takie rozplanowanie przestrzeni pozwala na wygodne użytkowanie i zapewnia prywatność mieszkańcom na wyższej kondygnacji.