Projekt nowoczesnego domu kostki powstał w odpowiedzi na rosnące zapotrzebowanie na funkcjonalne i ekonomiczne budownictwo modułowe. Nasz zespół zaprojektował dom z kontenerów morskich, który doskonale wpisuje się zarówno w kontekst miejskiej zabudowy, jak i w krajobraz górski czy wiejski. Budowa oparta na powtarzalnych elementach konstrukcyjnych, takich jak kontenery morskie, pozwala na szybki montaż i dostosowanie bryły budynku do różnorodnych, także nietypowych i wąskich działek.
Dom posiada wymiary zewnętrzne 6,32×12,32m oraz powierzchnię zabudowy 77,9m². Rozkład funkcjonalny obejmuje:
- parter o powierzchni użytkowej 61,45m² z przestronnym wiatrołapem, gabinetem, otwartą komunikacją oraz strefą dzienną: pokój dzienny (27,1m²), kuchnię, WC i duże pomieszczenie gospodarcze (52,3m²),
- piętro z sypialniami, przestrzenią do pracy, garderobą oraz łazienką.
Projekt zakłada parterowy dom z płaskim dachem, estetycznie wykończony drewno elewacyjnym, co podkreśla minimalistyczną i czystą formę budynku. Strefa dzienna została maksymalnie przeszklona, dzięki czemu wnętrze naturalnie doświetlają promienie słoneczne przez cały dzień. Zastosowanie nieregularnego układu okien nadaje elewacji dynamiczny charakter, a podniesienie budynku na słupach umożliwia stworzenie zadaszonego miejsca parkingowego bez potrzeby budowy garażu. Jest to rozwiązanie szczególnie polecane dla działek o wąskim lub nieregularnym kształcie.
W projekcie przewidziano wentylację mechaniczną wraz z rekuperacją, co pozytywnie wpływa na komfort użytkowania oraz parametry energooszczędne. Dom kontenerowy sprawdza się jako dom jednorodzinny, dom letniskowy albo budynek rekreacyjny. Zastosowana technologia prefabrykacji skraca czas realizacji inwestycji, a modułowy charakter umożliwia ekspansję i dostosowanie projektowanych przestrzeni do indywidualnych wymagań użytkownika. Opracowanie zapewnia czystą formę budynku i funkcjonalny układ pomieszczeń.
Nowoczesny dom kontenerowy z drewna w krajobrazie górskim

Minimalistyczny dom, którego konstrukcję nośną stanowią kontenery morskie, został w całości wykończony drewno elewacyjnym. Dzięki zastosowaniu jednorodnego materiału elewacyjnego uzyskano efekt czystej, geometrycznej formy. Bryła domu dobrze komponuje się z otaczającym krajobrazem – taka architektura podkreśla naturalne walory otoczenia i zapewnia widok na góry. Modułowa prefabrykacja pozwoliła na optymalne wykorzystanie terenu, szczególnie na działkach o nieregularnym kształcie.
Elewacja i nieregularny układ okien w domu kostce

Bryła domu wyróżnia się nieregularnym układem okien. Strefa dzienna posiada przeszklenia na całej wysokości, co zapewnia maksymalne doświetlenie wnętrza salonu naturalnym światłem. Po zmroku elewacja prezentuje się efektownie i podkreśla nowoczesny charakter architektury. Układ okien sprzyja widokom na taras, ogród i otaczającą przyrodę.
Nocna prezentacja nowoczesnej kostki z kontenerów morskich

Dom kostka oparty został na powtarzalnych elementach – kontenerach morskich. Minimalistyczna forma oraz proste linie elewacji podkreślają nowoczesny styl budynku. Czystość bryły osiągnięto przez zastosowanie jednego materiału wykończeniowego i ograniczenie detali architektonicznych.
Dom kontenerowy na słupach z miejscem postojowym

Konstrukcja budynku została posadowiona na słupach, co zapewnia lekkość bryły oraz zadaszone miejsce postojowe pod budynkiem. Podniesienie domu pozwala na efektywne wykorzystanie powierzchni działki i otwiera widoki na otaczający krajobraz. Rozwiązanie rekomendowane zwłaszcza na wąskie i nietypowe działki.
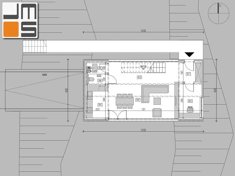
Rzut przyziemia – plan funkcjonalny parteru domu modułowego

Rzut przyziemia prezentuje funkcjonalny układ parterowego domu z płaskim dachem. Zaprezentowane parametry to: powierzchnia użytkowa 121,15m², powierzchnia zabudowy 77,9m², wymiary zewnętrzne 6,32×12,32m, dom bez garażu. Rozkład umożliwia efektywne rozmieszczenie funkcji dziennych i technicznych.
Układ wnętrz – rzut parteru domu z kontenerów

Rzut parteru obrazuje szczegółowy podział przestrzeni według funkcji: wiatrołap, gabinet, komunikacja, pokój dzienny, kuchnia, wc, pomieszczenie gospodarcze. Dom z kontenerów umożliwia elastyczne kształtowanie wnętrza dzięki modułowej konstrukcji. Powierzchnia użytkowa parteru wynosi 61,45m².
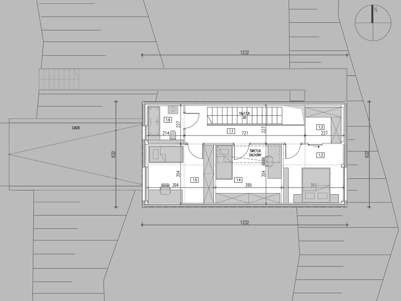
Układ piętra – rozwiązania funkcjonalne dla części prywatnej

Rzut piętra przewiduje: komunikację, sypialnię, garderobę, dwa pokoje oraz łazienkę. Dom z kontenerów pozwala na optymalizację rozkładu z zachowaniem maksymalnej powierzchni użytkowej na niewielkim obrysie zabudowy. Powierzchnia użytkowa piętra – 59,7m². Układ sprzyja komfortowi codziennego użytkowania oraz prywatności domowników.