Projekt domu K4 z przeszkleniem pionowym prezentuje nowoczesną interpretację domu jednorodzinnego z poddaszem użytkowym i dachem dwuspadowym o kącie 40 stopni. Powierzchnia użytkowa wynosi 163,48 m², natomiast powierzchnia zabudowy to 121,34 m². Wymiary zewnętrzne budynku: 9,28 × 16,48 m. Projekty domów nowoczesnych wymagają precyzyjnych rozwiązań, szczególnie przy nietypowych działkach czy wąskich parcelach. W tym przypadku zastosowanie przeszklenia pionowego na całej wysokości domu wpływa na integrację wnętrza z otoczeniem oraz doświetlenie przestrzeni salonu i jadalni.
Parter budynku zawiera osiem stref funkcjonalnych: wiatrołap 7,52 m², komunikację 7,39 m², WC 3,01 m², pomieszczenie techniczne 6,14 m², kuchnię 7,92 m², jadalnię 6,44 m², salon 23,13 m² oraz garaż jednostanowiskowy 29,96 m². Suma powierzchni użytkowej parteru wynosi 91,61 m². Poddasze użytkowe obejmuje antresolę z komunikacją 12,48 m², trzy sypialnie o powierzchniach: 16,61 m², 12,75 m², 11,92 m², dwie łazienki: 4,91 m² i 6,96 m² oraz garderobę 6,24 m².
Jako architekci uwzględniliśmy wymagania inwestorów dotyczące funkcjonalności i elastyczności w aranżacjach wnętrz, umożliwiając realizację zarówno w zabudowie wolnostojącej, jak i bliźniaczej. Uzupełnieniem całości są modernistyczna bryła, minimalistyczna forma domu, południowa elewacja z cegły i dach bez okapu. Dzięki temu projekt domu K4 wpisuje się w kategorie: projekty domów jednorodzinnych, projekty domów nowoczesnych, projekty domów z tarasem oraz projekty domów na nietypową działkę.
Elewacja południowa – dach bez okapu i modernistyczna bryła

Elewacja południowa domu z dachem bez okapu stanowi przykład minimalistycznej i modernistycznej architektury. Zlikwidowanie okapu pozwoliło na zachowanie prostoty formy, a użycie cegły oraz zadaszenie tarasu nadaje bryle bardziej przyjazny charakter. Zastosowane materiały oraz stonowana kolorystyka są typowe dla projektów domów murowanych z elementami designu nowoczesnego oraz rustykalnego. Elewacja zaakcentowano przeszkleniem pionowym, co zapewnia doświetlenie wnętrz i podkreśla kontakt domu z otoczeniem.
Budynek z przeszkleniem wertykalnym – integracja wnętrza z otoczeniem

Dominującym motywem jest przeszklenie pionowe na całą wysokość elewacji. Takie rozwiązanie pozwala na zwiększenie ilości naturalnego światła w salonie i jadalni. Zmniejsza granicę między wnętrzem, a otoczeniem zewnętrznym, zapewniając integrację przestrzeni mieszkalnej z tarasem i ogrodem. Ta innowacja została zastosowana w nowoczesnych projektach domów jednorodzinnych, pozwalając mieszkańcom pozostawać w bliskim kontakcie z przyrodą niezależnie od warunków atmosferycznych.
Funkcjonalność w zabudowie wolnostojącej i bliźniaczej

Projekt domu K4 umożliwia realizację zarówno jako dom wolnostojący, jak i segment bliźniaczy. Jednolite rozwiązania architektoniczne zapewniają spójność estetyczną niezależnie od rodzaju zabudowy. Układ pomieszczeń sprzyja łatwej adaptacji nawet na wąskich czy nietypowych działkach, co znajduje odbicie w kategoriach: projekty domów na nietypową działkę, projekty domów na wąską działkę. Optymalizacja przestrzeni obejmuje zarówno część dzienną, jak i nocną z poddaszem użytkowym oraz garażem jednostanowiskowym.
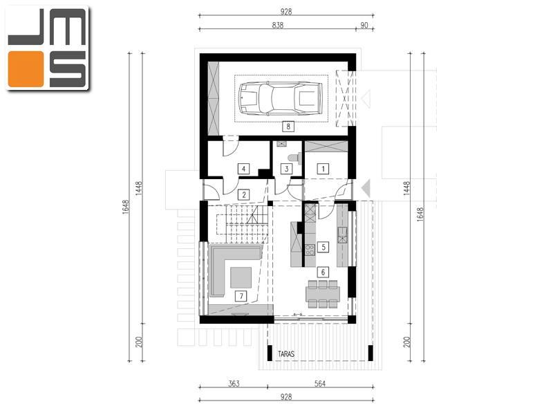
Rzut parteru – układ funkcjonalny strefy dziennej

Parter składa się z wiatrołapu 7,52 m², komunikacji 7,39 m², WC 3,01 m², pomieszczenia technicznego 6,14 m², kuchni 7,92 m², jadalni 6,44 m², salonu 23,13 m² oraz garażu jednostanowiskowego 29,96 m². Strefa dzienna została zaprojektowana w taki sposób, by maksymalizować komfort użytkowania i zapewnić łatwy dostęp do tarasu i ogrodu. Przeszklenie pionowe doświetla kuchnię, jadalnię oraz salon.
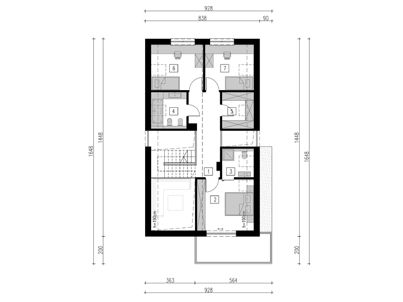
Rzut poddasza – antresola i rozkład części nocnej

Poddasze użytkowe zawiera antresolę z komunikacją 12,48 m², trzy sypialnie (16,61 m², 12,75 m², 11,92 m²), dwie łazienki (4,91 m² i 6,96 m²) oraz garderobę 6,24 m². Tak wyodrębniona część nocna zapewnia komfort użytkowania dla rodziny oraz pozwala efektywnie zagospodarować całą powierzchnię użytkową. Projekt uwzględnia potrzeby różnych użytkowników i umożliwia łatwą aranżację przestrzeni pod kątem indywidualnych wymagań.