Skip to main content

Projekt domu szeregowego K5 Gliwice – garaż pod ziemią i przeszklony parter. Ogród tylko dla mieszkańców, wyjątkowa strefa wejściowa

Projekt domu szeregowego K5 Gliwice należy do nowoczesnych domów przeznaczonych dla osiedli konkursowych. Główna koncepcja opiera się na rozdzieleniu ruchu pieszego i kołowego dzięki umieszczeniu garaży pod poziomem terenu. Pozwoliło to wyodrębnić przyjazną strefę wejściową, pełniącą rolę półpublicznej przestrzeni sprzyjającej integracji mieszkańców. W projekcie istotne znaczenie mają kładki, które podkreślają oryginalny i małomiejski charakter zabudowy.

W architekturze budynku zastosowano szachownicowy układ materiałów cegły i białego tynku oraz naprzemianległy rytm elewacji wsparty przez zewnętrzne żaluzje. Forma domu jest uwydatniona przez wykusz architektoniczny i pełne przeszklenie strefy dziennej parteru od strony części ogrodowej o charakterze półprywatnym. To rozwiązanie porządkuje całość wizualnie i zapewnia maksymalne doświetlenie wnętrz. Przestrzeń ogrodu jest dostępna wyłącznie dla mieszkańców, co wzmacnia prywatność i komfort użytkowania.

Dom zrealizowano jako dom szeregowy z poddaszem użytkowym, garażem jednostanowiskowym oraz tarasem. Na trzech kondygnacjach wyodrębniono funkcjonalny układ: strefę techniczną z garażem i spiżarnią (piwnica), strefę dzienną i gabinetowo-gościnną (parter) oraz część prywatną z sypialniami i garderobą na użytkowym poddaszu. Całkowita powierzchnia użytkowa wynosi 122,20 m2. Projekt charakteryzuje się wysoką energooszczędnością, wentylacją mechaniczną z rekuperacją i spełnia wymogi dla domów na wąską działkę. Wykorzystano sprawdzone rozwiązania dla domów nowoczesnych, rustykalnych i skandynawskich, dostosowując je do współczesnych potrzeb rodzinnych oraz miejskiej tkanki mieszkaniowej.

Koncepcja strefy wejściowej domów szeregowych

Koncepcja strefy wejściowej domów w zabudowie szeregowej
Koncepcja strefy wejściowej z kładkami. Projekt: JMS Studio, Kraków.

W projekcie osiedla konkursowego w Gliwicach garaże mieszkańców wraz ze strefą dojazdową usytuowano poniżej poziomu gruntu. Dzięki temu na poziomie wejścia powstała przestrzeń półpubliczna bez kolizji między ruchem pieszym a ruchem kołowym. Centralnym elementem tej strefy są kładki prowadzące do domów, które tworzą spójną przestrzeń i podkreślają małomiejski charakter miejsca, sprzyjający integracji mieszkańców.

Elewacja szeregowca – układ materiałów i ożywienie rytmu

Projekt budynków jednorodzinnych szeregowych
Szachownicowy układ elewacji i żaluzje zewnętrzne. Projekt: JMS Studio, Kraków.

Budynek jednorodzinny szeregowy K5 wyróżnia szachownicowy układ cegły i białego tynku. Taka kompozycja przełamuje tradycyjny, monotonny rytm domów szeregowych, nadając im oryginalny wygląd. Białe i czarne ramy z żaluzji zewnętrznych potęgują efekt naprzemiennego układu elewacji oraz znacząco uplastyczniają bryłę, wpisując ją w estetykę domów nowoczesnych i skandynawskich.

Przeszklona strefa dzienna z wykuszem od strony ogrodu

Projekt szeregówki z dużym przeszkleniem strefy dziennej
Elewacja ogrodowa z przeszkleniem i wykuszem. Projekt: JMS Studio, Kraków.

Elewacja od strony części ogrodowej o charakterze półprywatnym została w całości przeszklona w strefie dziennej parteru. Wykusz architektoniczny pełni rolę akcentu wizualnego, porządkując rytm zabudowy oraz zapewniając maksymalne doświetlenie wnętrz. Dostęp do ogrodu mają jedynie mieszkańcy, co gwarantuje prywatność i poczucie bezpieczeństwa.

Koncepcja funkcjonalna domu szeregowego – przekrój poprzeczny

Koncepcja  domu tzw. szeregówki
Przekrój funkcjonalny domu szeregowego. Projekt: JMS Studio, Kraków.

Przekrój poprzeczny budynku pozwala zobaczyć rozdzielenie ruchu pieszego i kołowego oraz układ funkcjonalny kondygnacji. Garaż, drogi dojazdowe i pomieszczenia techniczne umieszczono w piwnicy, podczas gdy parter i poddasze pełnią funkcje mieszkalne. Takie rozwiązanie ułatwia codzienne użytkowanie, zwiększa bezpieczeństwo i podkreśla logikę przestrzenną projektu.

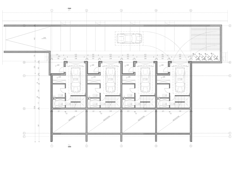
Rzut piwnicy szeregówki

Rzut  piwnicy szeregówki
Układ funkcji technicznych i garaż w piwnicy. Projekt: JMS Studio, Kraków.

W piwnicy domu K5 znajduje się garaż o powierzchni 24,09 m2, pomieszczenie techniczne (5,25 m2), spiżarka (3,63 m2) oraz schody zabiegowe prowadzące na parter. Garaż i drogi dojazdowe umieszczono pod poziomem terenu, co pozwala uniknąć kolizji z ruchem pieszym na poziomie wejściowym.

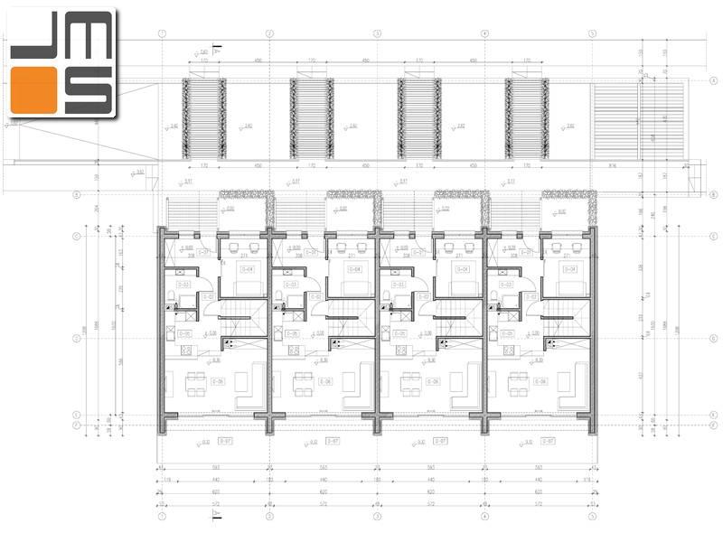
Rzut parteru wraz z wejściem do domu szeregowego

Rzut parteru i strefy wejściowej
Rzut parteru z kładkami wejściowymi. Projekt: JMS Studio, Kraków.

Na parterze budynku zaprojektowano przestrzeń dzienną obejmującą wiatrołap, kuchnię (7,34 m2), salon (21,75 m2) oraz gabinetowo-gościnne (9,11 m2) i łazienkę z natryskiem (4,01 m2). Wejście do domu prowadzi przez kładki, dodatkowo podkreślające oryginalny charakter strefy wejściowej.

Rzut poddasza użytkowego szeregowca

Rzut poddasza domu szeregowego
Układ pokoi i łazienek na poddaszu. Projekt: JMS Studio, Kraków.

Na poddaszu użytkowym zaprojektowano dwa pokoje (11,72 m2 i 12,15 m2), sypialnię (12,99 m2) ze zintegrowaną garderobą (4,30 m2) oraz ogólnodostępną łazienkę (7,92 m2). Łączna powierzchnia użytkowa wynosi 122,20 m2, co potwierdza funkcjonalność domu dla rodziny.