Projekt domu z zewnętrznym basenem rekreacyjnym K1 łączy nowoczesną architekturę ze starannie przemyślanym rozplanowaniem przestrzeni. Projekt został stworzony z myślą o użytkownikach poszukujących domu jednorodzinnego o powierzchni użytkowej 227,26 m2, wpisującego się w kategorie nowoczesnych domów, willi oraz domów z poddaszem użytkowym.
Bryła budynku powstała jako efekt przenikania typowej dwuspadowej formy i horyzontalnego prostopadłościanu, w którym znajduje się strefa dzienna. Zastosowano biały tynk oraz akcenty z czerwonej cegły, wzbogacone o blachę dachową w kolorze ciemnego grafitu. Nad strefą wypoczynkową pojawiły się białe zasłony zewnętrzne – zapewniające ochronę i sprzyjające prywatności. Na parterze znajduje się rozległy salon, kuchnia, jadalnia, gabinet, łazienka, pomieszczenie techniczne oraz garaż dwustanowiskowy. Na poddaszu zaplanowano przestronne sypialnie, łazienki, garderobę, bibliotekę oraz pomieszczenie gospodarcze.
Budynek wyróżnia się tarasem oraz harmonijnie wkomponowanym basenem rekreacyjnym zewnętrznym. Projekt adresowany jest do osób ceniących wentylację mechaniczną, nowoczesną stodołę, przemyślaną kompozycję bryłową i rozwiązania sprzyjające rekreacji. Forma budynku umożliwia lokalizację na działkach o nietypowym kształcie (wymiar zewnętrzny: 14,58×15,13 m), a dach o kącie 40 stopni zapewnia efektywność użytkową oraz wyrazistość sylwetki.
Bryła budynku i elewacja

Wizualizacja ukazuje dom nowoczesny, gdzie główną rolę odgrywają biały tynk i wyraziste elementy z czerwonej cegły. Forma powstała poprzez przenikanie klasycznej bryły z dwuspadowym dachem i horyzontalnego prostopadłościanu obejmującego strefę dzienną. Zastosowanie blachy dachowej w kolorze ciemnego grafitu oraz białych zasłon zewnętrznych podkreśla nowoczesny charakter budynku i nadaje fasadzie lekkości. Elewacja została zaprojektowana w duchu nowoczesnej stodoły.
Strefa rekreacyjna z basenem zewnętrznym

Grafika prezentuje basen rekreacyjny zewnętrzny wkomponowany w układ budynku. Basen został objęty ramą domykającą kompozycję bryłową, co sprzyja integracji części rekreacyjnej z pozostałą częścią domu. Takie rozwiązanie to przykład nowoczesnych trendów oraz wyraz świadomego projektowania przestrzeni wypoczynkowej.
Kontekst urbanistyczny projektu

Zdjęcie przedstawia projekt konkursowy domu klasy premium na osiedlu Gliwice Ostropa. Budynek zapewnia prawie 230 m2 powierzchni użytkowej, z podziałem na strefę dzienną, trzy sypialnie, gabinet oraz garaż dwustanowiskowy. Zaprojektowane pomieszczenia odpowiadają oczekiwaniom użytkowników poszukujących wygodnego, a jednocześnie funkcjonalnego domu.
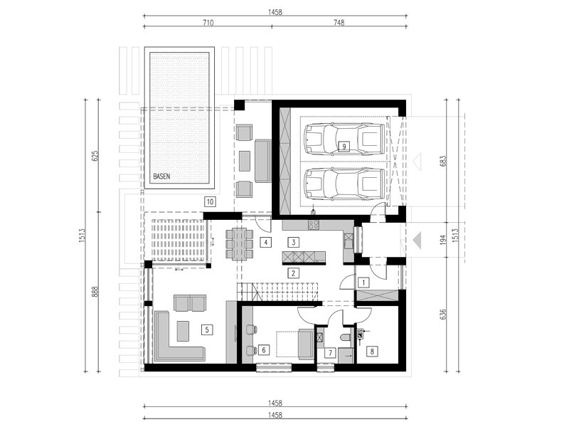
Rzut parteru – funkcje i powierzchnie

Plan parteru ukazuje rozkład takich pomieszczeń jak:
- wiatrołap – 4,67 m2,
- komunikacja – 11,35 m2,
- kuchnia – 9,51 m2,
- jadalnia – 10,03 m2,
- salon – 25,45 m2,
- gabinet – 13,04 m2,
- łazienka – 4,22 m2,
- pomieszczenie techniczne – 7,52 m2,
- garaż dwustanowiskowy – 39,64 m2,
- taras.
Suma powierzchni użytkowej parteru: 125,43 m2. Wymiar budynku: 14,58 x 15,13 m, kąt dachu: 40°.
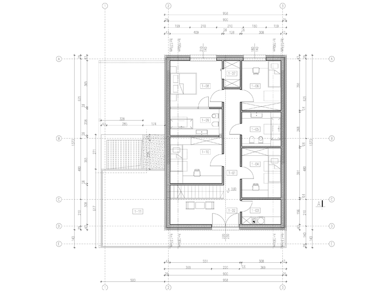
Poddasze – rozplanowanie przestrzeni prywatnej

Na poziomie poddasza przewidziano:
- komunikację – 10,95 m2,
- bibliotekę – 11,51 m2,
- pomieszczenie gospodarcze – 6,03 m2,
- sypialnię – 12,04 m2,
- łazienkę – 8,25 m2,
- sypialnię – 12,04 m2,
- garderobę – 2,67 m2,
- sypialnię – 14,92 m2,
- łazienkę – 8,50 m2,
- sypialnię – 14,92 m2,
- taras.
Suma powierzchni użytkowej poddasza: 101,83 m2. Powierzchnia użytkowa całego domu: 227,26 m2.