Skip to main content

Projekt nowoczesnego domu K3 – prosta bryła, poddasze użytkowe i funkcjonalny taras. Komfortowe wnętrze na działkę w Gliwicach

Projekt nowoczesnego domu K3 został opracowany z myślą o funkcjonalności i estetyce typowej dla domów jednorodzinnych przeznaczonych zarówno do zabudowy wolnostojącej, jak i bliźniaczej. Powierzchnia użytkowa domu wynosi 155,92 m2, a powierzchnia zabudowy to 111,46 m2. Główna bryła budynku, zaprojektowana jako prostopadłościan z dachem dwuspadowym o kącie nachylenia 40°, zapewnia prostotę i efektywność rozwiązań konstrukcyjnych.

Rozwiązania funkcjonalne przewidują na parterze: wiatrołap (5,89 m2), spiżarkę (1,66 m2), kuchnię (6,83 m2), jadalnię (6,42 m2), salon (26,68 m2), osobne pomieszczenie techniczne (7,16 m2), toaletę (1,12 m2), komunikację w domu (5,61 m2) i garaż jednostanowiskowy o powierzchni 21,55 m2. Układ funkcjonalny domu stanowi przemyślane połączenie strefy dziennej z bezpośrednim dostępem na zadaszony taras.

Poddasze użytkowe o powierzchni 73,00 m2 mieści trzy sypialnie (18,18 m2, 14,76 m2 oraz 14,76 m2), dwie łazienki (7,22 m2 i 5,17 m2), garderobę (4,95 m2) oraz przestrzeń komunikacyjną (7,96 m2). Kształt bryły wzbogacono o wykusz, który zwiększa metraż pokoi oraz nadaje bryle charakterystyczny wygląd.

Budynek wyróżnia się rozwiązaniami przewidzianymi dla domów wysoko energooszczędnych, opcją montażu wentylacji mechanicznej oraz rekuperacji. Prosta bryła domu, biała elewacja z tynkiem, akcenty z czerwonej cegły i grafitowy dach wzmacniają charakter nowoczesności przy zachowaniu elementów tradycyjnych. Wymiary zewnętrzne budynku wynoszą 9,48 x 16,23 m, co umożliwia realizację inwestycji na działkach o nietypowych kształtach. Projekt spełnia wymagania dla osób poszukujących domów o maksymalnej funkcjonalności, energooszczędności i eleganckiej prostocie.

Elewacja wschodnia domu K3

Elewacja wschodnia budynku jednorodzinnego K3
Elewacja wschodnia. Projekt: JMS Studio Kraków. W realizacji użyto białego tynku, czerwonej cegły i grafitowego dachu.

Elewacja wschodnia projektu domu K3 prezentuje układ kolorystyczny oparty na kontrastującej kompozycji białego tynku, czerwonej cegły oraz dachu w kolorze grafitowym. Elementy z cegły zostały użyte do podkreślenia funkcjonalnie ważnych stref, takich jak wjazd do garażu jednostanowiskowego czy wejście główne z zadaszonym podcieniem. Rozwiązanie to łączy projekty domów nowoczesnych z akcentami architektury tradycyjnej, zapewniając jednocześnie spójność wizualną. Kolorystyka elewacji poprawia odporność na zabrudzenia, a także wizualnie ociepla zarys domu.

Koncepcja budynku z zadaszonym tarasem

Koncepcja prostego budynku jednorodzinnego z zadaszonym tarasem
Widok koncepcji prostej bryły z dwuspadowym dachem i zadaszonym tarasem. Projekt: JMS Studio Kraków.

Dom K3 został zaprojektowany jako prostopadłościan z dachem dwuspadowym i powierzchnią użytkową 155 m2. Prosta bryła domu umożliwia jej łatwą adaptację na różne potrzeby użytkowników oraz zapewnia efektywne wykorzystanie przestrzeni. Zadaszony taras pełni rolę funkcjonalnego przedłużenia strefy dziennej, chroniąc przed niekorzystnymi warunkami atmosferycznymi. Budynek spełnia wymagania projektów domów jednorodzinnych z poddaszem użytkowym i może być zrealizowany na działkach nietypowych dzięki zwartej formie i przemyślanej lokalizacji wejść.

Projekt domu z możliwością zabudowy wolnostojącej lub bliźniaczej

Projekt niewielkiego domu do zabudowy wolnostojącej lub bliźniaczej
Widok wykuszu powiększającego powierzchnię pokojów na poddaszu. Projekt: JMS Studio Kraków.

Budynek posiada prostopadłościenny wykusz, dzięki któremu zwiększa się powierzchnia użytkowa pokoi na poddaszu. Taki wykusz nie tylko podnosi walory funkcjonalne, ale także uplastycznia zewnętrzną formę bryły. Dom K3 można wykorzystać zarówno do zabudowy wolnostojącej, jak i bliźniaczej, co czyni ten projekt domu uniwersalnym wyborem na działki o różnych parametrach. Projekt wyróżnia się możliwością elastycznego dopasowania do wytycznych klienta.

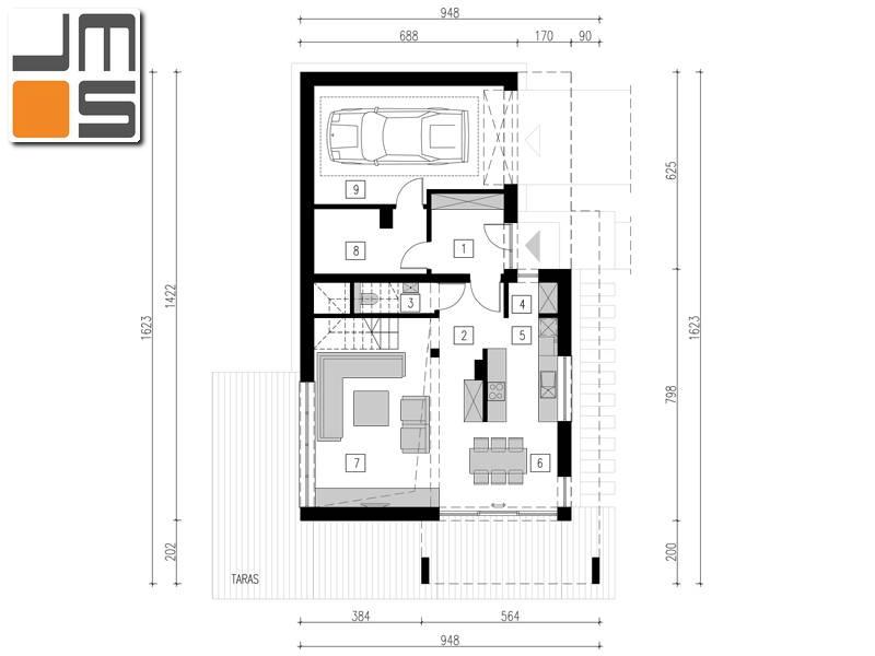
Układ funkcjonalny parteru

Układ funkcjonalny domu w parterze
Układ funkcjonalny parteru domu K3. Projekt: JMS Studio Kraków z czytelnym podziałem na strefy mieszkalne.

Parter domu K3 został zaprojektowany z podziałem na siedem podstawowych stref użytkowych: wiatrołap (5,89 m2), komunikacja (5,61 m2), WC (1,12 m2), spiżarka (1,66 m2), kuchnia (6,83 m2), jadalnia (6,42 m2), salon (26,68 m2), pomieszczenie techniczne (7,16 m2) oraz garaż jednostanowiskowy (21,55 m2). Taki układ zapewnia intuicyjny przepływ pomiędzy strefami, pozwalając oddzielić życie codzienne od technicznych aspektów budynku. Projekt nowoczesnego domu K3 umożliwia optymalne doświetlenie i wygospodarowanie funkcjonalnych przestrzeni do pracy, odpoczynku i spożywania posiłków.

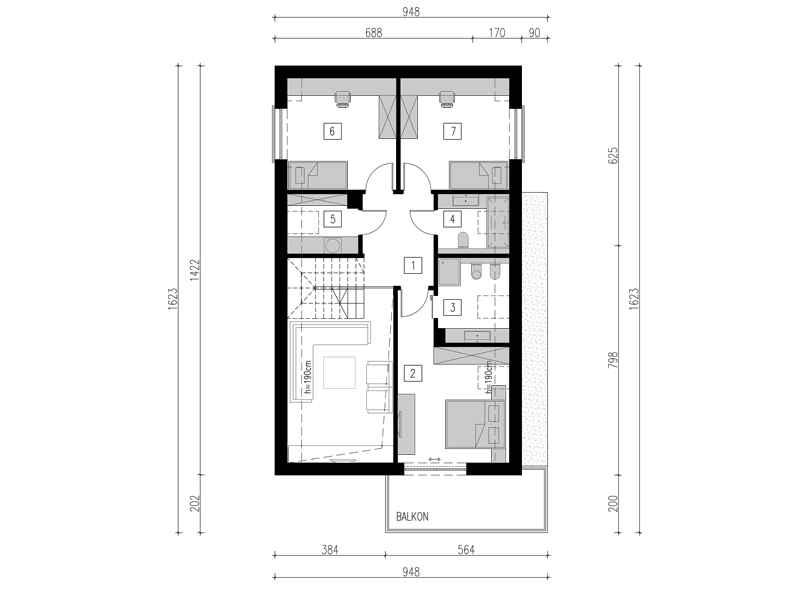
Rzut poddasza użytkowego z lukarnami

Rzut poddasza użytkowego domu jednorodzinnego z lukarnami
Rzut poddasza użytkowego z lukarnami w domu K3. Projekt: JMS Studio Kraków.

Poddasze użytkowe obejmuje: komunikację (7,96 m2), sypialnię (18,18 m2), dwie dodatkowe sypialnie (po 14,76 m2), dwie łazienki (7,22 m2 i 5,17 m2) oraz garderobę (4,95 m2). Zamieszczenie lukarn pozwala na zwiększenie powierzchni użytkowej, zapewniając naturalne doświetlenie oraz efektywne zagospodarowanie przestrzeni pod dachem. Projekt domu z trzema sypialniami i dwiema łazienkami gwarantuje komfort użytkowania rodzinom o zróżnicowanych wymaganiach. Taki układ pozwala również na przyszłą adaptację pomieszczeń według indywidualnych potrzeb.