Prosty dom z białą elewacją i nowoczesnymi oknami został zaprojektowany jako dom nowoczesny o podkreślonej geometrycznej bryle i wysokiej funkcjonalności. Część południowa domu z wyjściem na taras została wysunięta do przodu i zaakcentowana szarym akcentem elewacji, co tworzy klarowny podział przestrzenny. Zastosowano duże okna o zróżnicowanych kształtach – poziome, pionowe i narożne – zapewniając dogodne doświetlenie wnętrz oraz płynne przejście między strefą dzienną i ogrodem.
Dom przewidziano jako projekt domu jednorodzinnego o powierzchni użytkowej 275,70 m2, zgodnie z aktualnymi trendami nowoczesnych domów z płaskim dachem (nachylenie 2 stopnie). Rozwiązania obejmują wentylację mechaniczną, rekuperację i energooszczędne technologie. Część rekreacyjna została powiększona o drewniany taras egzotyczny z aranżacją zieleni, a garaż dwustanowiskowy zlokalizowano od strony północnej. We wnętrzu znalazły się strefy: salon kąpielowy, sauna, garderoba, pokój hobby, gabinet na parterze oraz funkcjonalne pomieszczenia gospodarcze.
Dom efektywnie wpisuje się w nietypową działkę, a bryłowa kompozycja z wzajemnie poprzesuwanych elementów oraz zielony dach i świetlik nad salonem podkreślają jego niepowtarzalny charakter. Projekt uwzględnia wysokie wymagania dotyczące komfortu, energooszczędności i nowoczesnej aranżacji wnętrz.
Wysunięta część południowa z dużymi oknami i płaskim dachem

Na wizualizacji przedstawiono dom nowoczesny z wysuniętą południową strefą tarasu, wyróżnioną szarym akcentem na tle białej elewacji. Duże, nowoczesne okna zostały zaprojektowane jako element integralny wnętrza i podkreślają bryłową formę budynku. Płaski dach wpisuje się w architektoniczne tendencje domów luksusowych.
Prosta kompozycja architektoniczna domu z oknem narożnym

Rzut przedstawia układ wzajemnie poprzesuwanych elementów budynku, charakterystyczny dla nowoczesnych projektów domów piętrowych. Okno narożne umożliwia dodatkowe doświetlenie i nadaje bryle dynamiki.
Południowy taras z dużymi oknami i nowoczesną aranżacją zieleni

Taras od strony ogrodu posiada powierzchnię z drewna egzotycznego. Przemyślana aranżacja zieleni wprowadza harmonię z otoczeniem. Duże okna o nieregularnych kształtach dostarczają światła oraz łączą wnętrze domu z terenem zewnętrznym.
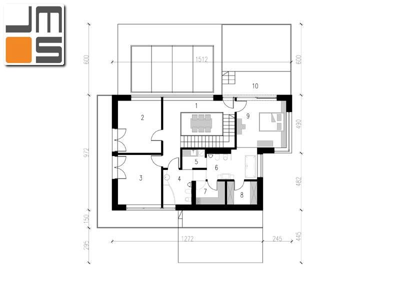
Rzut piętra – strefa prywatna i rekreacyjna

Na piętrze zlokalizowano sypialnię (17,6 m2), salon kąpielowy (10,5 m2), saunę oraz garderobę. Komunikację zapewniają szerokie korytarze o powierzchni 13,40 m2. Suma powierzchni użytkowej piętra wynosi 96,33 m2.
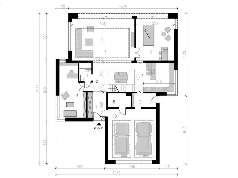
Rzut parteru – strefa dzienna i funkcjonalna

Parter mieści salon (49 m2), kuchnię z jadalnią (32 m2), pokój hobby (30 m2), gabinet (23 m2), garaż dwustanowiskowy (45,5 m2), kotłownię i pomieszczenie gospodarcze. Powierzchnia użytkowa parteru to 169,20 m2.
Zielony dach i świetlik nad salonem

Zastosowany zielony dach i świetlik biegnący nad salonem pozwalają na dogodne doświetlenie wnętrza oraz podnoszą energooszczędność domu. Podłużne okna w każdej elewacji podkreślają bryłową formę.
Biała elewacja i wielokształtne okna

Architektura skupia się na bryłowej formie budynku. Pionowe, poziome oraz narożne okna gwarantują maksymalne doświetlenie wnętrz. Całość harmonijnie współgra z otoczeniem.
Garaż dwustanowiskowy i zadaszone wejście

Widok od strony północnej prezentuje garaż dwustanowiskowy oraz wejście zadaszone płytą balkonową. Praktyczna lokalizacja garażu podnosi komfort codziennego użytkowania.